Page 79 - Marix Technology
P. 79
2009년 Marix Technoloy
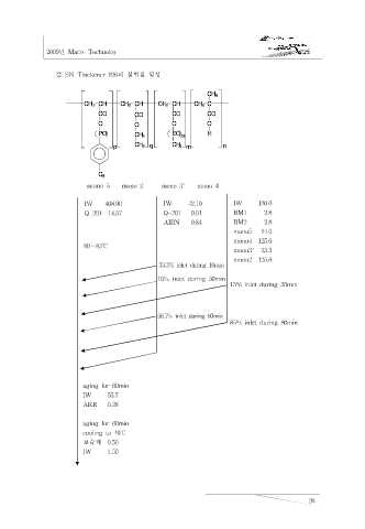
② SN-Thickener 926의 실험실 합성
CH 3
CH 2 CH CH 2 CH CH 2 CH CH 2 C
CO CO CO CO
O O O O
PO CH 2 EO 23 H
p CH 3 q CH 3 m n
C 9
momo 5 mono 2 mono 3' mono 4
IW 408.90 IW 42.10 IW 180.6
Q-201 14.57 Q-201 0.91 RM1 2.8
AIBN 0.84 RM2 2.8
mono5 14.0
mono4 125.6
80~83℃
mono3' 23.3
mono2 125.6
33.3% inlet during 10min
10% inlet during 30min
15% inlet during 30min
56.7% inlet during 80min
85% inlet during 80min
aging for 60min
IW 55.7
AKR 0.28
aging for 60min
cooling to 40℃
보습제 0.50
IW 1.50
26

